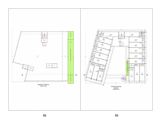
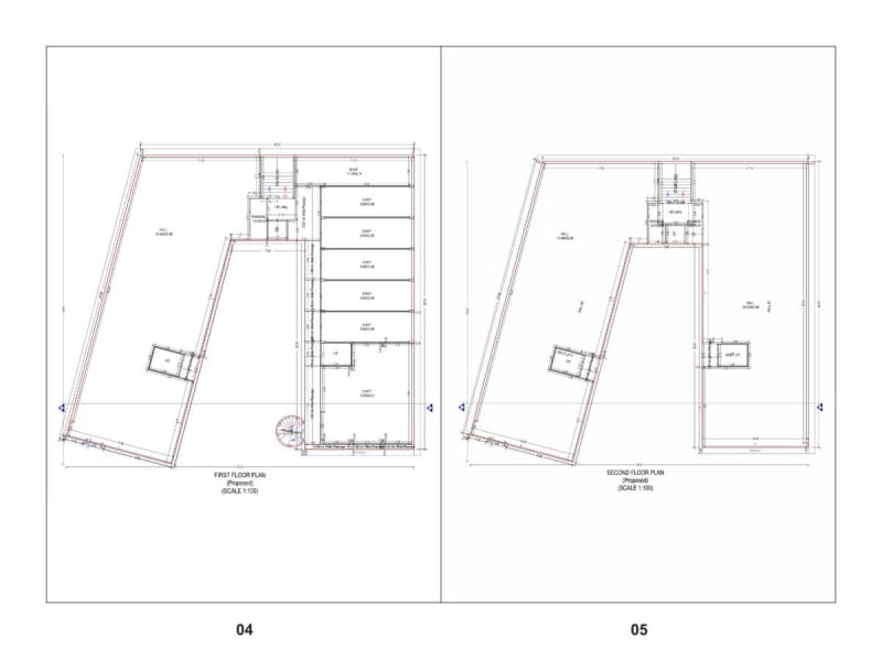
Hempushpa Avenue is a commercial real estate project developed by Dudheshvar Enterprise, strategically located at R.s. No :- 842 Plot No :- 1a,1b,2a,2b , Sankhari Tran Rasta , Patan - Chanasma Highway , Patan , Gungadipati , Patan, 384265. This RERA-registered property (Registration No: PR/GJ/PATAN/PATAN/Patan Municipality/CAA15483/100725/280226). 30 Commercial Units With Shops
The project is professionally designed by Krunal Jitendrakumar Patel and engineered by Krunalkumar Kamleshbhai Modi, ensuring quality construction and adherence to all regulatory standards. For more information about this property, interested buyers can contact Dudheshvar Enterprise directly at 9879049222.








